정밀 브이블록

A 형 정밀 야겐 대 (SYAK75A)

열처리 V 블록 (SHV75)
● A 형 정밀 야겐 대 (주철)
고급 주철 (FC250)에서 연마에 의한 정밀 V 블록입니다.
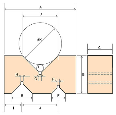
정밀 케가 키에 대한 측정 지그 용으로 사용됩니다. (바닥 대 V면의 평행도 10μm 각면의 평행도 · 직각도 30μm)
● 주철 정밀 야겐 대
● 경도 스틸 V 블록
※ 2 개 1 세트입니다.


● 열처리 V 블록 (경도 경도 제)
특수 공구 스틸에서 열처리 경도 HS-60 ° 연마에 의한 정밀 마무리 제품입니다.
표준 블록으로 사용됩니다. (정확도 바닥 대 V면의 평행도 5μm 각면의 평행 직각도 20μm 이내)
